Nawiewniki Renson
Jest to grupa nawiewników montowanych w oknach lub drzwiach na pakietach szybowych. W zależności od miejsca zamontowania nawiewnika, dzielą się na naszybowe, podszybowe i nawiewniki w poprzeczce (w zależności od typu).
Renson TC60

Kompletny nawiewnik naszybowy TC60 jest wykonany z profili aluminiowych z przekładką termiczną. Nawiewnik został zaprojektowany do zastosowania w oknach wykonanych z pvc oraz aluminium.
Wewnętrzny profil nawiewnika TC60 jest perforowany i funkcjonuje jako osłona przeciwko owadom. Specjalna przesłona gwarantuje doskonałą odporność na wodę opadową.
W skład gotowego nawiewnika wchodzą profile wraz z przekładkami, końcówki nawiewnika, uszczelka naszybowa oraz wkręty. Nawiewnik zmontowany, gotowy do montażu w oknie.

Parametry techniczne:
- przepływ powietrza: 141m3/h/m przy 10Pa,
- szczelność na wodę i wiatr do 650Pa w pozycji zamkniętej,
- sterowanie manualne za pomocą sznurka lub cięgna,
- wysokość całkowita nawiewnika: 75mm,
- zmniejszenie wysokości szyby: 60mm,
- dostępny dla pakietów o grubości: 20mm, 24mm oraz 28mm.
- opcje kolorystyczne: anodowanie srebrne, dowolne kolory z palety RAL 1- i 2-stronne.
Renson THM90

Nawiewnik THM90 to nawiewnik aluminiowy z przekładką termiczną, o dużej różnorodności zastosowań. Jest on dostępny zarówno w wersji do montażu nad szybą, pod szybą oraz w wersji do drzwi przesuwnych. Nawiewnik ten jest przeznaczony do montażu w oknach pvc oraz aluminiowych. Nawiewnik naszybowy THM90 może być wyposażony w automatyczną regulację przepływu powietrza. Przesłona regulująca przepływ powietrza działa automatycznie w zależności od zmian strumienia powietrza. Regulacja następuje poprzez zmianę przekroju szczeliny, przez którą przepływa powietrze. Wewnętrzny profil nawiewnika jest perforowany i funkcjonuje jako osłona przeciwko owadom. Specjalna przesłona gwarantuje doskonałą odporność na wodę opadową.

Parametry techniczne:
- przepływ powietrza: 48,6m³/h/m przy 10Pa
- szczelność na wodę i wiatr do 650Pa w pozycji zamkniętej,
- dostępność różnych mechanizmów sterowania: manualne, cięgno, sznurek, silnik,
- wysokość całkowita nawiewnika: 105mm,
- zmniejszenie wysokości szyby: 90mm,
- dostępny dla pakietów o grubości: 20mm, 24mm, 28mm oraz 33mm (tylko w wersji THM 90) .
- opcje kolorystyczne: anodowanie srebrne, dowolne kolory z palety RAL 1- i 2-stronne.
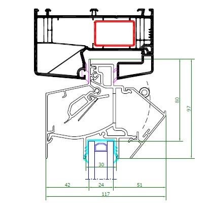
Renson Variavent

Variavent to nowoczesny nawiewnik okienny, który posiada samoregulację przepływu powietrza i charakteryzuje się eleganckim profilem zewnętrznym. Jest następcą popularnego modelu AR75, łącząc sprawdzone technologie z nowoczesnym designem. Wewnątrz dostępne są dwa profile: iFlux i Flat, gdzie iFlux zapewnia estetyczny wygląd, ukrywając otwory wentylacyjne i podnosząc komfort użytkowników.
Cztery różne poziomy przepływu powietrza. Nawiewnik Variavent zapewnia wysoki przepływ powietrza. Ogranicznik przepływu powietrza jest zintegrowany w pokrywie końcowej, co umożliwia regulację natężenia przepływu bez konieczności demontażu wentylacji okiennej. Niezależnie od natężenia przepływu, produkt zachowuje jednolity wygląd, co zapewnia spójny wygląd wizualny.

Parametry techniczne:
- przepływ powietrza: 91,44 m3/h/m (10Pa),
- szczelność na wodę i wiatr do 650Pa w pozycji zamkniętej, do 50Pa w pozycji otwartej,
- dostępność różnych mechanizmów sterowania: manualne, cięgno, sznurek,
- wysokość całkowita nawiewnika: 97mm,
- zmniejszenie wysokości szyby: 80mm,
- dostępny dla pakietów o grubości: 20mm, 24mm, 28mm, 32mm, 36mm, 40mm, 44mm,
- opcje kolorystyczne: biały, czarny, dowolne kolory z palety RAL 1- i 2-stronne.